
Translation missing: en.accessibility.tabbed_content_title
Product Description
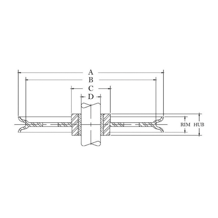
McKissick Sheave, 1/2 in Maximum Cable, 8 in Sheave Outside Dia, Self-Lubricating Bronze Bushing Bearing, Ductile Iron Sheave
| Specification | Value |
|---|---|
| Size | 8" |
| Material | Roll-Forged Sheaves |